安诗曼电器
手机:133-6050-3273
微信:133-6050-3273
地址:广东深圳坪山区青松西路8号鸿合科技园

空气加湿是空调工程中热、湿处理的基本方法之一,是在空气中加入水份以提高空气湿度的一种方法,即将液态水汽化为空气的组成部分以提高空气的含水率,称之为空气加湿。根据热、湿交换理论,在实际工程中我们将加湿分为以下两种:1、等焓加湿:即利用水吸收空气的显热进行蒸发加湿,其在焓、湿图上的变化为近似等焓过程。采...
了解详情
一、工业除湿机应用空气干燥:工业除湿机广泛应用于贵重物品仓库、制药、食品、电子、皮革、鞋业、家具、印刷制品、化工、烟草等诸多行业。使物品避免了因潮湿、霉变带来的重大损失。产品适用面积大,特别适用于大型车间及仓库使用物品干燥:
了解详情
快件包裹喷雾消毒机冷链食品快件雾化消毒措施:10月份爆发的疫情还在继续,虽然总体上还在控制之中,但是扩散的范围越来越大,从内蒙开始扩散到全国十几个省市了,特别是石家庄、黑龙江地区比较严重,而且感染的还是德尔塔变异病毒,果然是应了那句话,防不胜防,毕竟病毒肉眼看不见,不知道从哪儿进来的,也许是入境的人...
了解详情
1、空气净化一般的洁净间空间系统中,空气化处理采用空气过滤器。通常情况下,安装初效过滤器和中效过滤器后,空气洁净度可以达到级。而对于的超净要求的洁净间还应安装高效过滤器。这样,空气洁净度可以达到更高(如100级甚至更高).过滤器长期使用时,滤料上沉附的灰尘将慢慢增加,这样会增大气流阻力,影响整个空调...
了解详情
支招|避开低价陷阱买到放心除湿机新闻资讯:众所周知,找到一家可靠的除湿机生产厂家,购买一台可靠的除湿机应该是很多用户都希望的一件事情。实际上呢!大多数除湿机生产厂家的除湿机设备都存在问题,只是用低价劣质除湿机设备做一次性买卖的,之后对用户
了解详情
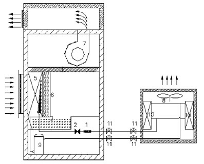
调温除湿机用蒸发器来给空气降温除湿,并回收系统的冷凝热,弥补空气中因为冷却除湿时散失的热量,是一种高效节能的除湿方式,已经广泛应用于国防工程、人防工程、烟草及石化行业、地铁车站、航天领域净化工程、实验室、电讯器材室、档案室、食品房、制药或胶片车间、特种玻璃制造、粮食、木材等的除湿干燥和高湿空间的除湿...
了解详情
多比多看,才能买到好除湿机新闻资讯:只有选择对了更好的除湿机品牌,才能买到质量更好、更为好用的除湿机产品,才享受更为优质的服务。哪么,目前市场中除湿机哪个品牌好,大家又该如何去辨别一个除湿机品牌的好坏呢?对于除湿机
了解详情
项目工作人员处理风量再生方式再生方式(电)冷负荷除湿空间制冷机功率名m3/hKWKWKWm3KWZHS-4501~3500~8009~1319~3238~9225~4012.5~30.4ZHS-5502~4800~100011~1827~
了解详情
地下车库干燥除湿机,地下车库专用除湿机器新闻资讯众所周知,现如今人们生活条件越来越好了,不少家庭都过上了有房有车的好日子。但是,随着汽车数量的不断增加,大家不仅会遇到经常堵车的情况,而且还会停车问题而感到苦恼;因此,为了
了解详情
除湿器厂家中经常容易同事间出现矛盾,或者一个部门里,业务做得最好的和其他同事关系不太好,且公说公有理,婆说婆有理,老板左右为难:是迁就那两个能干的人,还是迁就大家?管理者往往容易做出一个简单的反应:这个人对,那个人错。我们往往把问题归罪于某个人,以为把一个人处理了,我们就万事大吉了。但结果往往是当我...
了解详情
转轮除湿机,30%RH以下低湿环境除湿设备新闻资讯现如今,随着科技的快速进步和产品技术的不断更新提升,比如制药、电子、半导体、食品行业,其全新的生产工艺及生产过程中对环境温、湿度、洁净度的较高要求,需要大家提供一
了解详情
君欲想防潮无忧,必先买好除湿机新闻资讯众所周知,雨水天气持续不断,室外到处都是湿漉漉的,室内也是潮乎乎的感觉。这样潮湿的天气对室内装修、家具、电器以及人体舒适度、身心健康等都会造成很诸多的影响。有些朋友或许还不清楚潮湿对室内装修
了解详情
误区一:买的除湿产品送到了,赶紧按上试试。新买的除湿机最好不要马上使用,需要先静置4~6个小时后再开机使用。如果您能保证在运输和装卸过程中没有倾斜或颠覆,是可以马上使用的。工人的搬运及运输的颠簸会让压缩机内的制冷剂移位,如果马上开机使用,压缩机会无法正常工作,或者机器能运行,除湿效率也会很差,噪音也...
了解详情
降尘|纺织厂络筒、倍捻车间加湿器新闻资讯:众所周知,在纺织厂、纺纱厂、棉纺厂以及针织厂、织布厂等工厂或企业的生产车间中,环境湿度、温度对其生产工艺影响是非常大的,特别是相对湿度的变化所造成的影响更显著;因此,纺织厂根据其实际需求和现场工况对
了解详情
车间防爆除尘喷雾机降温降尘防爆炸:粉尘是无处不在的,要不然冬天也不会有雾霾了,这其实就是一种粉尘。工业生产也会出现粉尘,我们使用的很多产品表面那么光滑,这不是一次性就可以加工成功,而是要经过不断的打磨,在打磨过程中就会有粉尘出现。更别说很多东西原来就是粉末状的,比如
了解详情
你愿意给除湿机上保险吗除湿机延保推新规范售价2388元的DH-825C除湿机,你愿意再花300多元延长保修期三年,花钱买个放心吗?这就是许多商家针对价值不菲的大宗耐用除湿机产品推出的延保服务。由于延保服务在国内尚无标准规范,除湿机延保问世以来引发颇多争议。近日,中国家电维修服务协会推出了除湿机延保服...
了解详情
工业生产中经常被湿气所困扰,湿气会导致一系列的问题,影响生产的进度。物品发霉、设备无法正常运转的情况也时不时会发生。一般来说,在工业生产中工厂都要采购很多工业除湿机来对影响生产的潮湿空气进行祛除。促使广大工厂厂家选择除湿机的理由又是什么呢?如今,大部分的工厂企业都已经意识到了在潮湿的环境下,是非常不...
了解详情
一台好的除湿机,是怎么炼成的新闻资讯:众所周知,南方大部地区每年只要一到梅雨天,就会有不少人都会皱起眉头,衣服难干、器材怕潮、家里变得和“水帘洞”一样,到处都是湿漉漉的、潮乎乎的;不过,这个时候只要有一台的除湿机,就能很的帮你解决梅雨天潮湿所引起的这些问题!可是,现在市场上销售的除湿机有很多,其质量...
了解详情
根据湿度要求,我们又将加湿分为工艺性加湿及舒适性加湿两种:1、在现代化的工业生产及科学实验中对空气湿度的重视程度日益提高,要求也越来越高,如果湿度不能满足要求,将会造成不同程度的不良后果,例如:电子厂、半导体厂、程控机房、防爆工厂等场所的湿度要求一般在40%~60%RH,如果相对湿度不够则会造成静电...
了解详情
工业加湿器是有雾好,还是无雾好?各有千秋新闻资讯现如今,随着现代工业化的快速发展,也预示着人们拥有着更多的制造能力。然而在,一个个大型工厂或建立起来的同时,在其生产加工过程中就会配置很多基本的设备,而工业加湿器即工业加湿机,就是其中一种给工厂空气加湿、除静电的重要辅助工具和机器设备。在任何的工业生产...
了解详情